消防改造
消防維保
主機維修
聯系我們
- 聯系人:郭經理
- 傳真:010-69552656
- 電話:400-0346-119
- 電話:010-57113119
- 郵箱:506665119@qq.com
- 地址:北京通州區新華北路117號
安全出口與疏散出口的區別
來源:北京消防改造 時間:2020-05-27 10:27:39
安全出口:供人員安全疏散用的樓梯間和室外樓梯的出入口或直通室內外安全區域的出口。


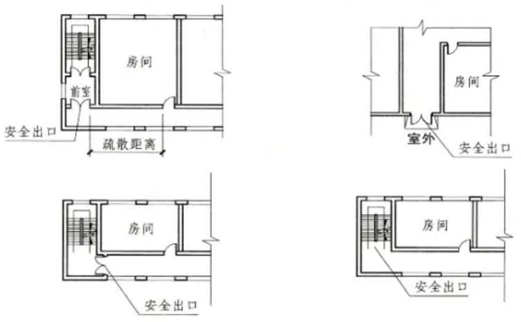
常見安全出口示意圖
安全出口是指建筑內某一區域直通室內或室外的疏散出口,通常有直通室外安全區域(包括符合疏散要求的室外地面、下沉廣場、屋面、天臺、天橋等)的出口、符合規范要求的疏散樓梯間的樓層入口(防煙樓梯間為其前室的樓層入口)、室外疏散樓梯的樓層入口、設計避難走道前室或避難間的入口、進入相鄰防火分區的入口等。
安全出口是疏散出口的一種,主要針對某一獨立的防火分區或樓層而言;疏散出口不一定是安全出口,疏散出口包括安全出口和房間疏散門,因此安全出口是安全度更高的疏散出口。
例如,一座3層的辦公樓,在首層設置了一間大會議室,在其他樓層設置了辦公室,則首層大會議室直通室外的疏散出口既是安全出口,也是疏散門,而各層辦公室通向疏散走道的房間門就只是疏散門,而不是安全出口,但樓層上通向疏散樓梯處的入口則是該樓層的安全出口。再比如,一座3層的商店建筑,其二層營業廳設置了4道門,每道門均直通封閉樓梯間,則這4道門既是該營業廳的安全出口,也是其疏散門。
附:哪些區域屬于室內安全區域?哪些區域屬于室外安全區域?
疏散樓梯間及其前室、避難間、避難層、避難走道、符合要求的室內步行街或有頂下沉廣場、有頂庭院、相互間采用防火墻完全分隔的相鄰防火區等,均可視為室內安全區域。
“室外安全區域”包括室外地面、符合疏散要求并具有直接到達地面設施的上人屋面、平臺以及符合本規范6.6.4條要求的天橋連廊等。
(6.6.4連接兩座建筑物的天橋、連廊,應采取防止火災在兩座建筑間蔓延的措施。當僅供通行的天橋、連廊采用不燃材料,且建筑物通向天橋、連廊的出口符合安全出口的要求時,該出口可作為安全出口。)
盡管規范將避難走道視為室內安全區,但其安全性能仍有別于地面,因此設計的安全出口要直接通向室外,盡量避免通過避難走道再疏散到室外地面。

